並列2台駐車可能|閑静な住宅街の限定1棟・新築戸建物件!!
- エリア
- 福生市福生
- 価格
- 5,700万円(税込)
| 交通 | JR青梅線「福生」駅徒歩17分 |
|---|---|
| 所在地 | 福生市福生MAP |

- 築年月
- 令和8年4月
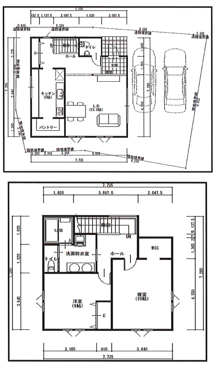
- 間取り
- 2LDK
- 建物面積
- 101.85(実測)㎡
- 土地面積
- 134.75 (実測)㎡
福生市福生の新築戸建てのご紹介です!!
※令和8年4月完成予定
福生市福生 【全1棟】
■外観


■前面道路

■完成イメージ


物件情報
| 構造・工法 | 木造2階建 | 土地権利 | 所有権 |
|---|---|---|---|
| 地目 | 宅地 | 用途地域 | 第1種低層住居専用地域 |
| 接道状況 | 一方 : 北 6m 公道 | 建ぺい率 / 容積率 | 40%/80% |
| 引渡し | 令和8年4月下旬 | 取引態様 | 仲介 |
| 駐車場 | 有り(カースペースとして2台分)※車種による | 現況 | 未完成 |
| 学区 | 福生市立福生第四小学校・福生市立福生第二中学校 | ||
| 設備 | 公営水道・公共下水・個別プロパン | ||
| 備考 | |||
ご希望の物件は見つかりましたか?
この度はアイディアル・ホームのサイトをご覧いただきありがとうございます。
いかがでしたか?気になる物件は見つかりましたでしょうか?
家探しは一生に一度のお買い物。なのでほとんどの人が初めてのことだと思います。
なのでもしかしたら、、、
- 「どんな家を選べばいいのか分からない」
- 「何から始めればいいのかも分からない」
- 「そもそも私達でも家が買えるのか分からない」
このように不安や悩みでなかなか動き出せず、見ているだけで終わってしまう人もいるかもしれません。しかしアイディアル・ホームでは、そんな方にこそ1から丁寧にお手伝いをさせていただいています。
アイディアル・ホームなら、、、
- 出回っていないような未公開物件から、あなたにピッタリの物件を探し出します。
- 分からないことや不安なことを1から相談に乗り、焦らずあなたのペースで家探しが出来ます。
- 少しでも安くて無理のない、審査の通りやすい住宅ローン探しを得意としています。
初めての家探しで不安なあなたでも安心して、楽しみながら家を探すことが出来るように。そして心から「ここにして良かった」と満足できるような、あなたにピッタリのお家に出会えるように、誠心誠意お手伝いさせていただきます。
もし気になる物件があれば、まずは是非一度内覧に行ってみましょう。実際に見に行くとイメージも広がりますし、実際には気が付かないこともたくさん見えてきます。そうした中で、あなたに一番合った理想の家を見つけましょう。
内覧希望はもちろん、些細な事でも気になることや、ご要望の条件がある場合は是非お問合わせ下さい。お電話でも問合わせフォームからでも大丈夫です。
あなたが理想の家に出会えることを願って。
この物件の内覧申込・お問い合せはこちら
関連記事
-
-
駅近の南道路で陽当り良好な売地‼残り2区画です‼
福生市加美平2丁目の売地のご紹介です。 週末や祝日には現地販売会を開催しておりま …
-
-
駅徒歩2分の3棟現場が完成しました‼
福生市熊川にある、3棟現場のご紹介です。 Livele Garden.S 福生熊 …
-
-
陽当り良好で、フルリノベーション済みの中古マンション!!
福生市熊川の中古マンションのご紹介です。 ビューハイツ富士 外観 室内 バルコニ …
-
-
小学校が近い、車並列2台駐車可能な2棟現場‼
福生市熊川の2棟現場のご紹介です。 Livele Garden.S 福生熊川第8 …
-
-
2駅4沿線利用可能な、北西角地の1棟現場!!
福生市南田園2丁目の1棟現場のご紹介です。 KIS 福生市南田園4期 全1棟 外 …
-
-
広い専用庭付のリフォーム済の中古マンション‼
福生市武蔵野台2丁目の中古マンションのご紹介です。 レクセルガーデン福生 1階部 …
-
-
「福生」駅から徒歩4分の、リフォーム済の中古マンション‼
福生市福生の中古マンションのご紹介です。 ダイアパレス福生 1階部分 外観等 室 …
-
-
4沿線利用可能なデザイナー住宅‼
福生市熊川の新築1棟現場のご紹介です。 熊川デザイナーズ新築戸建て 全1棟 外観 …
-
-
「福生」駅徒歩2分!!リノベーション済み中古マンション!!
福生市本町の中古マンションのご紹介です! ハイネス福生 4階部分 ■外観 ■玄関 …
-
-
土地も建物もコンパクトだけど、広々としたロフトがあるお家‼
福生市志茂の1棟現場のご紹介です。 福生市志茂 1棟現場 まずは外観。ビルトイン …
